Prodej bytu 2+KK 52 m²
Praha, Nepelova 951/5
cena včetně provize a kompletního právního servisu
Popis
Hledáte moderní bydlení v dosahu přírody, s parkováním a dostatkem úložných prostor? Rádi vám zprostředkujeme koupi útulného, slunného bytu 2+kk s příjemným balkónem, v 5. podlaží cihlového domu s výtahem, přímo u parku, ve vyhledávaném projektu Zahrady Nad Rokytkou, Praha 9 - Hloubětín.
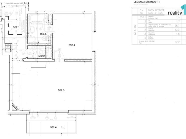
Tento nezařízený moderní byt, jehož obytná plocha činí 52.2 m², je dobře dispozičně řešen - z podlouhlé vstupní chodby s vestavnou skříní a samostatnou toaletou se vchází do prostorného obývacího pokoje se vstupem na příjemný balkon (+ 6 m²). Zde je prakticky řešená moderní kuchyňská linka (lednice, myčka, indukční deska, trouba, mikrovlnná trouba). V ložnici je velká šatní skříň, vstup do koupelny s vanou a druhou toaletou. Na podlahách plovoucí podlahy a dlažba, velká okna. K bytu dále náleží sklepní koje (1.5 m²) a garážové stání v suterénu domu, zahrnuté již v ceně. Byt je umístěný v posledním podlaží domu, což Vám zaručí klid na spaní.
Dům byl postaven v roce 2008, ve vyšším standardu, s použitím moderních materiálů, vstupem na čipy, kamerovým systémem. Okolí je vhodné pro aktivní zájemce - hned za domem můžete využívat fitness stezku Rokytka a cyklostezku vedoucí až do centra Prahy, nově postavený supermarket je pár minut pěšky, několik drobných obchodů také. Dále skvělá dostupnost do obchodního centra Galerie Harfa nebo Fénix, případně Černý Most, na dálnice směr Liberec, Hradec Králové i Teplice. Stanice MHD rovněž pár minut chůze.
Služby v domě, včetně FO, činí cca 5.500,-Kč, přičemž vyúčtování je vždy s přeplatkem. Byt je nyní tržně pronajat spolehlivému nájemci(1 osoba, ČR) a lze se domluvit na pokračování nájemní smlouvy, je tedy vhodný také pro zájemce o investici.
Prohlídka se uskuteční 19. 3. cca od 16.00 - 18.30, v případě zájmu mě kontaktujte. Majitel si vyhradil právo, v případě více zájemců, prodat byt nejvyšší nabídce. Ev. číslo: 27254.
Tento nezařízený moderní byt, jehož obytná plocha činí 52.2 m², je dobře dispozičně řešen - z podlouhlé vstupní chodby s vestavnou skříní a samostatnou toaletou se vchází do prostorného obývacího pokoje se vstupem na příjemný balkon (+ 6 m²). Zde je prakticky řešená moderní kuchyňská linka (lednice, myčka, indukční deska, trouba, mikrovlnná trouba). V ložnici je velká šatní skříň, vstup do koupelny s vanou a druhou toaletou. Na podlahách plovoucí podlahy a dlažba, velká okna. K bytu dále náleží sklepní koje (1.5 m²) a garážové stání v suterénu domu, zahrnuté již v ceně. Byt je umístěný v posledním podlaží domu, což Vám zaručí klid na spaní.
Dům byl postaven v roce 2008, ve vyšším standardu, s použitím moderních materiálů, vstupem na čipy, kamerovým systémem. Okolí je vhodné pro aktivní zájemce - hned za domem můžete využívat fitness stezku Rokytka a cyklostezku vedoucí až do centra Prahy, nově postavený supermarket je pár minut pěšky, několik drobných obchodů také. Dále skvělá dostupnost do obchodního centra Galerie Harfa nebo Fénix, případně Černý Most, na dálnice směr Liberec, Hradec Králové i Teplice. Stanice MHD rovněž pár minut chůze.
Služby v domě, včetně FO, činí cca 5.500,-Kč, přičemž vyúčtování je vždy s přeplatkem. Byt je nyní tržně pronajat spolehlivému nájemci(1 osoba, ČR) a lze se domluvit na pokračování nájemní smlouvy, je tedy vhodný také pro zájemce o investici.
Prohlídka se uskuteční 19. 3. cca od 16.00 - 18.30, v případě zájmu mě kontaktujte. Majitel si vyhradil právo, v případě více zájemců, prodat byt nejvyšší nabídce. Ev. číslo: 27254.
Další parametry
- 1
- 5
- 5
- Novostavba
- Cihla
- osobní
- Ano















